Published by admin in december 4 2014. 2008 2009 2010 passenger compartment fuse box the fuse panel is located in the passengers footwell.
Ford 6 0 Fuel Filter Housing Diagram Grabe 17 Brillenstudio
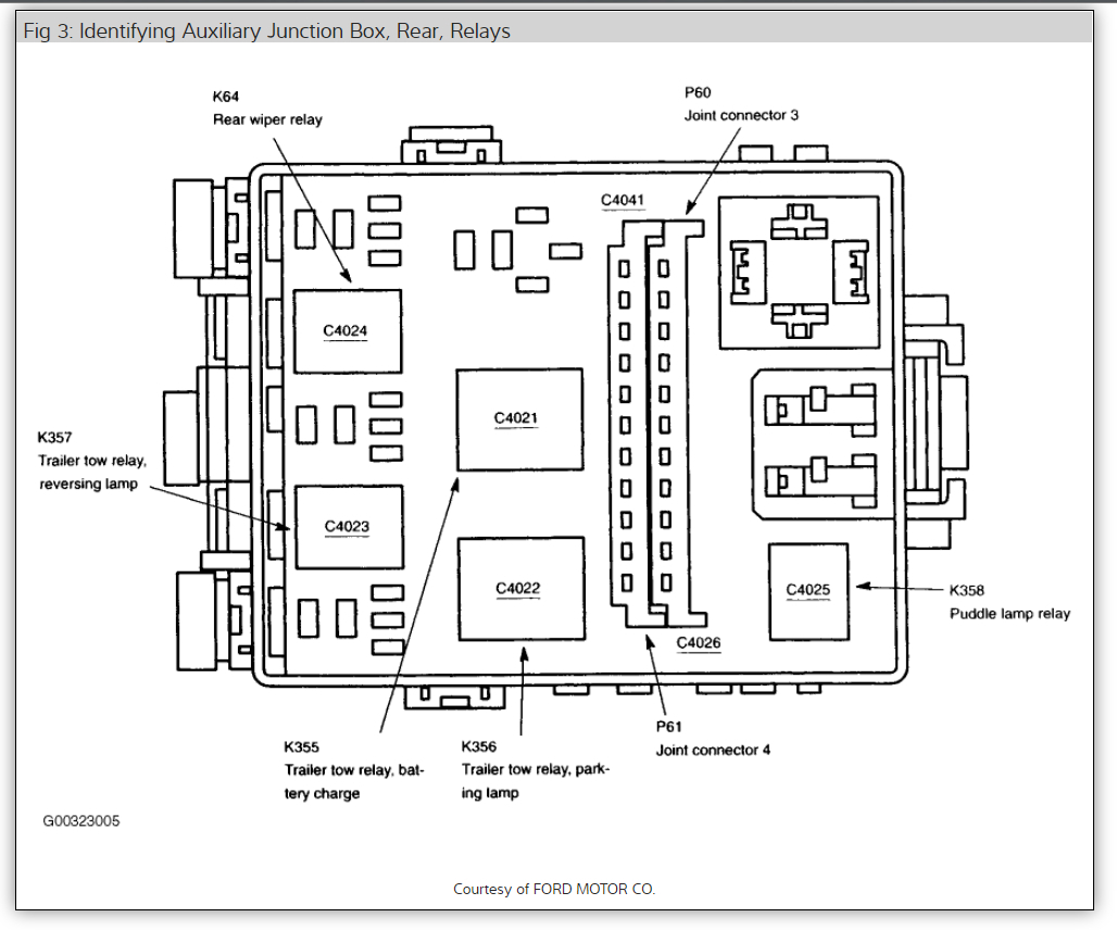
2008 f250 fuse box location. See more on our website. The fuse panel is located in the passengers footwell. Fuse box diagram fuse layout location and assignment of fuses and relays ford f250 f350 f450 f550 2008 2009 2010. 2008 f250 fuse box with 2008 ford f250 fuse panel image size 1201 x 643 px and to view image details please click the image. Test component secure the cover and test component. Httpsfuse boxinfofordford f 250 f 350 f 450 f 550 2008 2012 fuses and relay fuse box diagram location and assignment of elect.
We are still working to obtain content for your. 2008 2016 ford f 250 super duty. Httpsfuse boxinfofordford f 150 2004 2008 fuses and relay fuse box diagram location and assignment of electrical fuses and re. The 2008 ford f250 fuse box is located under the hood of the vehicle. See more on our website. The video above shows how to replace blown fuses in the interior fuse box of your 2008 ford f 350 super duty in addition to the fuse panel diagram location.
This fuse contains the relays of the vehicle. Upvote 0 downvote 0. There is a possibility of another fuse box located in the engine compartment as well. Ford f 250 fuse box diagram passenger compartment. Getting started prepare for the repair. Passenger compartment fuse box.
If you like this article you can bookmark or share it to your social media account i thank you significantly since you have actually seen this site. Remove cover locate interior fuse box and remove cover. Ford f 250 2008 2010 fuse box diagram year of production. Locate bad fuse find the fuse that is tied to the bad component. Electrical components such as your map light radio heated seats high beams power windows all have fuses and if they suddenly stop working chances are you have a fuse that has blown out. If your f 350 super duty is experiencing electrical problems you should always check the fuses first because they are relatively easy to check and.
Remove fuse take out the fuse in question and assess if blown. Well the fuse box which also called the power distribution box of your 2008 ford f 250 super duty is located under the hood in the passenger compartment. Interior fuse box location. Checking and replacing fuses fuses and circuit breakers protect your vehicles electrical system from overloading. Additional information on interior fuses. Rosen nissan helped make these videos.















